ようこそ ゲスト 様

住野太平ビル 1階

お問い合わせ番号:f10055-88135
賃貸店舗一部
神戸市中央区御幸通6
JR 三ノ宮駅 ( 徒歩 4分 )
賃料 14.30万円(税込)
(坪単価:2.34万円)
・1階路面店舗
・24時間入退室対応
・スケルトン返却
内覧候補日を数候補お問い合わせ時にお伝え下さい
管理費
共益費
-
22,000円(税込)
保証金
解約引
-
55万円(税込)
敷金
礼金
100万円
-
建物/専有
面積
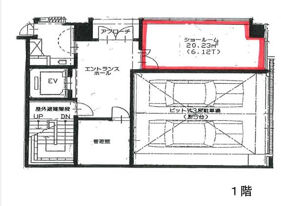
20.23m2
(6.11坪)
土地面積 - 築年月 1998年1月
(平成10年1月)
駐車場 空無 所在階 1階 地上階数
地下階数
9階
1階
構造 鉄骨鉄筋コンクリート造(SRC)
現況 空き
入居/引渡 相談 
取引 仲介
物件登録日 2026年1月30日
情報更新日 2026年1月30日
★★★★★★★★★★★★★★★★★★★★★★
非公開物件も多数HPにて公開中♪♪HPから会員登録いただくと非公開物件が閲覧可能です♪♪下記店舗情報をクリックいただきURLからHPにお進みいただけます。
★★★★★★★★★★★★★★★★★★★★★★
住野太平ビル 1階 のことならお気軽にご相談ください。
テナントショップ神戸(株式会社LIFE)
TEL:078-391-9811
営業時間:9:30-18:00
定休日 :土・日・祝日
メールでのお問い合わせ

お電話の場合は「テナントショップを見ました。物件番号は < f10055-88135 > です」と伝えていただくとスムーズにお応えできます。

  • 借りる
  • 店舗を探す
  • 事務所・事業所を探す
  • 倉庫・工場を探す
  • 借地を探す
  • 美容・エステ・医療物件
  • 居抜き物件
非公開物件情報
一般公開物件
777
会員用非公開物件
161
  • ログイン
  • 新規登録
  • 買う
  • 売地を探す
フリーワード検索 [New!]
スペース区切りの複合語句検索はできません

  • 依頼する
  • 新着物件!未公開物件!地元に詳しい!
  • 物件リクエスト
  • スマートフォンで物件検索
  • 実績紹介
  • 物件管理
  • 会社概要・アクセス
  • 求人情報
  • 居抜きのまま閉店で開店費用を大幅に削減
  • LINE
  • 公式Facebook
  • 公式Instagram
  • 公式Twitter