ようこそ ゲスト 様

能登町ビル

お問い合わせ番号:f10055-87809r
賃貸店舗・事務所
西宮市能登町
阪急神戸線 西宮北口駅 ( 徒歩 13分 )
賃料 65.00万円(税別)
(坪単価:0.92万円)
西宮・事務所1棟ビル
トイレ専用
設備の性能保証なし
国道171号線沿い
2年未満1か月分の違約金
内覧候補日を数候補お問合せ時にお伝え下さい。
管理費 -
-
保証金
解約引
-
-
敷金
礼金
1ヶ月
1ヶ月
建物/専有
面積
233.44m2
(70.61坪)
土地面積 129.84m2
(39.27坪)
築年月 1991年5月
(平成3年5月)
駐車場 有り有料/6台
(10万円(税別))
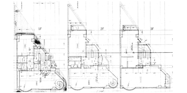
所在階 1-3階 地上階数
地下階数
3階
-
構造 鉄骨造
用途地域 準住居地域
現況 空き
入居/引渡 相談 
取引 仲介
物件登録日 2025年11月26日
情報更新日 2025年11月26日
★★★★★★★★★★★★★★★★★★★★★★
非公開物件も多数HPにて公開中♪♪HPから会員登録いただくと非公開物件が閲覧可能です♪♪下記店舗情報をクリックいただきURLからHPにお進みいただけます。
★★★★★★★★★★★★★★★★★★★★★★

能登町ビルの特徴・設備


能登町ビル のことならお気軽にご相談ください。
テナントショップ神戸(株式会社LIFE)
TEL:078-391-9811
営業時間:9:30-18:00
定休日 :土・日・祝日
メールでのお問い合わせ

お電話の場合は「テナントショップを見ました。物件番号は < f10055-87809r > です」と伝えていただくとスムーズにお応えできます。

  • 借りる
  • 店舗を探す
  • 事務所・事業所を探す
  • 倉庫・工場を探す
  • 借地を探す
  • 美容・エステ・医療物件
  • 居抜き物件
非公開物件情報
一般公開物件
971
会員用非公開物件
195
  • ログイン
  • 新規登録
  • 買う
  • 売地を探す
フリーワード検索 [New!]
スペース区切りの複合語句検索はできません

  • 依頼する
  • 新着物件!未公開物件!地元に詳しい!
  • 物件リクエスト
  • スマートフォンで物件検索
  • 実績紹介
  • 物件管理
  • 会社概要・アクセス
  • 求人情報
  • 居抜きのまま閉店で開店費用を大幅に削減
  • LINE
  • 公式Facebook
  • 公式Instagram
  • 公式Twitter