ようこそ ゲスト 様

神戸市東灘区 賃貸倉庫

お問い合わせ番号:f10055-87804r
賃貸倉庫
神戸市東灘区御影本町5
阪神本線  御影駅 ( 徒歩 10分 )
賃料 93.00万円(税別)
(坪単価:0.50万円)
賃貸保証会社加入・保証金 企業様により相談
天井高 4.6 柱3.7
立幅20メートル 横幅30メートル
駐車場複数台有、有料 10トンから乗用車迄駐車可
ガス無 給排水無 電気有
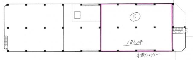
当該区画の利用可能な搬入間口は南側シャッターとなります
事務所が横にあります。金額はお問い合わせください。
希少な倉庫物件です
管理費 25,000円
-
保証金
解約引
-
-
敷金
礼金
-
-
建物/専有
面積
613.41m2
(185.55坪)
土地面積 - 築年月 1972年5月
(昭和47年5月)
駐車場 所在階 1階 地上階数
地下階数
3階
-
構造 鉄筋コンクリート造(RC)
現況 空き
入居/引渡 相談 
取引 仲介
物件登録日 2025年11月26日
情報更新日 2025年11月27日
★テナントショップ神戸好評運営中!
★物件はもちろん・内装のデザイン事務所
 会社設立の法務関係・資金計画の融資相談
 商品を扱う各種卸業者からゴミ事業者まで
 提携企業とのコラボレーションで対応中です。
★物件探し~出店迄ワンストップでサポート!
★お気軽に申し付け下さい。

神戸市東灘区 賃貸倉庫 周辺地図

神戸市東灘区 賃貸倉庫 のことならお気軽にご相談ください。
テナントショップ神戸(株式会社LIFE)
TEL:078-391-9811
営業時間:9:30-18:00
定休日 :土・日・祝日
メールでのお問い合わせ

お電話の場合は「テナントショップを見ました。物件番号は < f10055-87804r > です」と伝えていただくとスムーズにお応えできます。

  • 借りる
  • 店舗を探す
  • 事務所・事業所を探す
  • 倉庫・工場を探す
  • 借地を探す
  • 美容・エステ・医療物件
  • 居抜き物件
非公開物件情報
一般公開物件
971
会員用非公開物件
195
  • ログイン
  • 新規登録
  • 買う
  • 売地を探す
フリーワード検索 [New!]
スペース区切りの複合語句検索はできません

  • 依頼する
  • 新着物件!未公開物件!地元に詳しい!
  • 物件リクエスト
  • スマートフォンで物件検索
  • 実績紹介
  • 物件管理
  • 会社概要・アクセス
  • 求人情報
  • 居抜きのまま閉店で開店費用を大幅に削減
  • LINE
  • 公式Facebook
  • 公式Instagram
  • 公式Twitter