ようこそ ゲスト 様

JM141

お問い合わせ番号:f10055-87783
賃貸事務所
神戸市兵庫区和田宮通3
神戸市営地下鉄海岸線 和田岬駅 ( 徒歩 4分 )
賃料 190.00万円(税別)
(坪単価:1.31万円)
・2026年5月上旬引き渡し予定
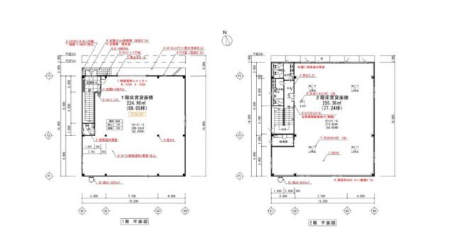
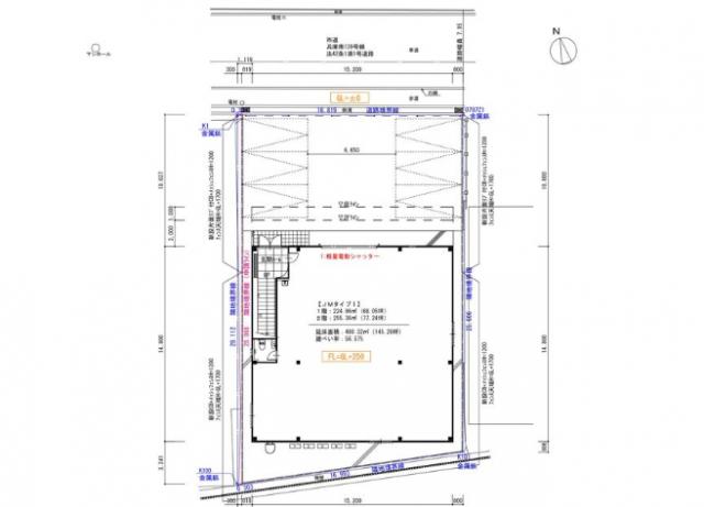
・人気JMシリーズ 兵庫区大型倉庫
・1F フリースペース フォークリフト用電源、電動シャッター
・2Fオフィススペース 個別空調、OAフロア、男女別トイレ
・内覧候補日を数候補お問合せ時にお伝え下さい
管理費 -
-
保証金
解約引
1,900万円
570万円
敷金
礼金
-
-
建物/専有
面積
480.32m2
(145.29坪)
土地面積 - 築年月 2024年4月
(令和6年4月)
駐車場 - 所在階 1-2階 地上階数
地下階数
2階
-
構造 鉄骨造
用途地域 準工業地域
現況 居住中
入居/引渡 期日指定 
引渡年月 2026年05月
取引 仲介
物件登録日 2025年11月21日
情報更新日 2025年12月16日
★★★★★★★★★★★★★★★★★★★★★★
非公開物件も多数HPにて公開中♪♪HPから会員登録いただくと非公開物件が閲覧可能です♪♪下記店舗情報をクリックいただきURLからHPにお進みいただけます。
★★★★★★★★★★★★★★★★★★★★★★

JM141の特徴・設備


JM141 のことならお気軽にご相談ください。
テナントショップ神戸(株式会社LIFE)
TEL:078-391-9811
営業時間:9:30-18:00
定休日 :土・日・祝日
メールでのお問い合わせ

お電話の場合は「テナントショップを見ました。物件番号は < f10055-87783 > です」と伝えていただくとスムーズにお応えできます。

  • 借りる
  • 店舗を探す
  • 事務所・事業所を探す
  • 倉庫・工場を探す
  • 借地を探す
  • 美容・エステ・医療物件
  • 居抜き物件
非公開物件情報
一般公開物件
765
会員用非公開物件
154
  • ログイン
  • 新規登録
  • 買う
  • 売地を探す
フリーワード検索 [New!]
スペース区切りの複合語句検索はできません

  • 依頼する
  • 新着物件!未公開物件!地元に詳しい!
  • 物件リクエスト
  • スマートフォンで物件検索
  • 実績紹介
  • 物件管理
  • 会社概要・アクセス
  • 求人情報
  • 居抜きのまま閉店で開店費用を大幅に削減
  • LINE
  • 公式Facebook
  • 公式Instagram
  • 公式Twitter