ようこそ ゲスト 様

JM74 A室

お問い合わせ番号:f10055-87780
賃貸事務所
西宮市深津町
阪急神戸線 西宮北口駅 ( 徒歩 10分 )
賃料 179.00万円(税別)
(坪単価:1.41万円)
人気JMシリーズ・西宮 準工エリア
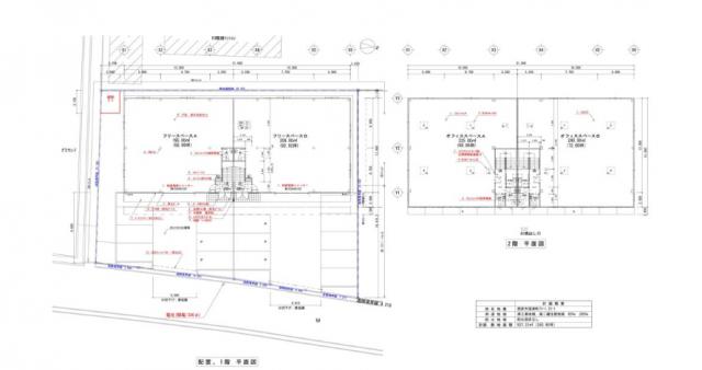
1Fフリースペース フォークリフト用電源、電動シャッター
2Fオフィススペース 個別空調、OAフロア、男女別トイレ
駐車スペース有
内覧候補日を数候補お問合せ時にお伝え下さい
管理費 -
-
保証金
解約引
1,790万円
537万円(税別)
敷金
礼金
-
-
建物/専有
面積
420.00m2
(127.05坪)
土地面積 - 築年月 2017年3月
(平成29年3月)
駐車場 有り無料 所在階 1-2階 地上階数
地下階数
2階
-
構造 鉄骨造
用途地域 準工業地域
現況 居住中
入居/引渡 期日指定 
引渡年月 2026年04月
取引 仲介
物件登録日 2025年11月21日
情報更新日 2025年11月21日
★★★★★★★★★★★★★★★★★★★★★★
非公開物件も多数HPにて公開中♪♪HPから会員登録いただくと非公開物件が閲覧可能です♪♪下記店舗情報をクリックいただきURLからHPにお進みいただけます。
★★★★★★★★★★★★★★★★★★★★★★

JM74 A室の特徴・設備


JM74 A室 のことならお気軽にご相談ください。
テナントショップ神戸(株式会社LIFE)
TEL:078-391-9811
営業時間:9:30-18:00
定休日 :土・日・祝日
メールでのお問い合わせ

お電話の場合は「テナントショップを見ました。物件番号は < f10055-87780 > です」と伝えていただくとスムーズにお応えできます。

  • 借りる
  • 店舗を探す
  • 事務所・事業所を探す
  • 倉庫・工場を探す
  • 借地を探す
  • 美容・エステ・医療物件
  • 居抜き物件
非公開物件情報
一般公開物件
967
会員用非公開物件
188
  • ログイン
  • 新規登録
  • 買う
  • 売地を探す
フリーワード検索 [New!]
スペース区切りの複合語句検索はできません

  • 依頼する
  • 新着物件!未公開物件!地元に詳しい!
  • 物件リクエスト
  • スマートフォンで物件検索
  • 実績紹介
  • 物件管理
  • 会社概要・アクセス
  • 求人情報
  • 居抜きのまま閉店で開店費用を大幅に削減
  • LINE
  • 公式Facebook
  • 公式Instagram
  • 公式Twitter