ようこそ ゲスト 様

尼崎市 賃貸事務所

お問い合わせ番号:f10055-87721r
賃貸事務所
尼崎市尾浜町1
東海道線 尼崎駅 ( 徒歩 20分 )
賃料 45.00万円(税別)
(坪単価:1万円)
お問い合わせが多い物件です。内覧候補日を数候補
お問合せ時にお伝え下さい。
・デイケア、介護施設に最適
・介護用浴槽付き
・諸条件相談可能
管理費 -
-
保証金
解約引
2ヶ月
-
敷金
礼金
-
3ヶ月
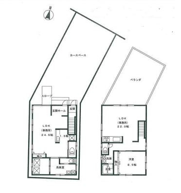
建物/専有
面積
148.34m2
(44.87坪)
土地面積 198.35m2
(60坪)
築年月 2004年1月
(平成16年1月)
駐車場 有り無料 所在階 1-2階 地上階数
地下階数
-
-
構造 鉄骨造
現況 空き
入居/引渡 相談 
契約期間
取引 仲介
物件登録日 2025年11月17日
情報更新日 2025年11月17日
★毎日ザクザク情報公新中!
★ネットNG情報・水面下情報など、担当者に
 お問い合わせ下さい。
★あなたにピッタリの物件情報が見つかります。
★出店時の融資の相談、退店時の備品の相談
 水面下での業務引き継ぎなどなど、
 専門スタッフがご回答させて頂きますので
 お気軽にご相談ください。

尼崎市 賃貸事務所の特徴・設備


尼崎市 賃貸事務所 のことならお気軽にご相談ください。
テナントショップ神戸(株式会社LIFE)
TEL:078-391-9811
営業時間:9:30-18:00
定休日 :土・日・祝日
メールでのお問い合わせ

お電話の場合は「テナントショップを見ました。物件番号は < f10055-87721r > です」と伝えていただくとスムーズにお応えできます。

  • 借りる
  • 店舗を探す
  • 事務所・事業所を探す
  • 倉庫・工場を探す
  • 借地を探す
  • 美容・エステ・医療物件
  • 居抜き物件
非公開物件情報
一般公開物件
972
会員用非公開物件
176
  • ログイン
  • 新規登録
  • 買う
  • 売地を探す
フリーワード検索 [New!]
スペース区切りの複合語句検索はできません

  • 依頼する
  • 新着物件!未公開物件!地元に詳しい!
  • 物件リクエスト
  • スマートフォンで物件検索
  • 実績紹介
  • 物件管理
  • 会社概要・アクセス
  • 求人情報
  • 居抜きのまま閉店で開店費用を大幅に削減
  • LINE
  • 公式Facebook
  • 公式Instagram
  • 公式Twitter