ようこそ ゲスト 様

AZTO(アジト)田能 C号室

お問い合わせ番号:f10055-87579
賃貸事務所
尼崎市田能1
阪急神戸線 園田駅 ( 徒歩 20分 )
賃料 10.50万円
(坪単価:1.05万円)
人気シリーズ
屋外駐車場込、事務所兼倉庫に最適
設備、電気、工務店様、個人事業主様にも
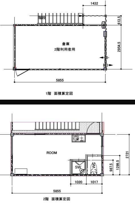
階段は共有
1階屋外水栓・簡易手洗い水栓・電動シャッター
管理費
共益費
-
5,000円
保証金
解約引
-
-
敷金
礼金
1ヶ月
1ヶ月
建物/専有
面積
33.00m2
(9.98坪)
土地面積 - 築年月 2021年4月
(令和3年4月)
駐車場 - 所在階 1-2階 地上階数
地下階数
2階
-
構造 鉄骨造
現況 居住中
入居/引渡 期日指定 
引渡年月 2025年11月
取引 仲介
物件登録日 2025年11月4日
情報更新日 2025年11月4日
★★★★★★★★★★★★★★★★★★★★★★
非公開物件も多数HPにて公開中♪♪HPから会員登録いただくと非公開物件が閲覧可能です♪♪下記店舗情報をクリックいただきURLからHPにお進みいただけます。
★★★★★★★★★★★★★★★★★★★★★★

AZTO(アジト)田能 C号室の特徴・設備


AZTO(アジト)田能 C号室 のことならお気軽にご相談ください。
テナントショップ神戸(株式会社LIFE)
TEL:078-391-9811
営業時間:9:30-18:00
定休日 :土・日・祝日
メールでのお問い合わせ

お電話の場合は「テナントショップを見ました。物件番号は < f10055-87579 > です」と伝えていただくとスムーズにお応えできます。

  • 借りる
  • 店舗を探す
  • 事務所・事業所を探す
  • 倉庫・工場を探す
  • 借地を探す
  • 美容・エステ・医療物件
  • 居抜き物件
非公開物件情報
一般公開物件
971
会員用非公開物件
171
  • ログイン
  • 新規登録
  • 買う
  • 売地を探す
フリーワード検索 [New!]
スペース区切りの複合語句検索はできません

  • 依頼する
  • 新着物件!未公開物件!地元に詳しい!
  • 物件リクエスト
  • スマートフォンで物件検索
  • 実績紹介
  • 物件管理
  • 会社概要・アクセス
  • 求人情報
  • 居抜きのまま閉店で開店費用を大幅に削減
  • LINE
  • 公式Facebook
  • 公式Instagram
  • 公式Twitter