ようこそ ゲスト 様

芦屋川17th森田ビル 1~3階部分

お問い合わせ番号:f10055-87509
賃貸店舗一部
芦屋市東芦屋町
阪急神戸線 芦屋川駅 ( 徒歩 3分 )
賃料 35.00万円(税別)
(坪単価:0.89万円)
芦屋川・1棟
2025年12月末退去予定
内覧候補日を数候補お問合せ時にお伝え下さい
管理費 -
-
保証金
解約引
6ヶ月
-
敷金
礼金
-
-
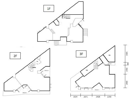
建物/専有
面積
129.61m2
(39.2坪)
土地面積 - 築年月 2005年1月
(平成17年1月)
駐車場 有り無料/1台 所在階 1-3階 地上階数
地下階数
3階
1階
構造 鉄筋コンクリート造(RC)
用途地域 第一種中高層住居専用地域
現況 居住中
入居/引渡 期日指定 
引渡年月 2026年01月
取引 仲介
物件登録日 2025年10月27日
情報更新日 2025年10月27日
★★★★★★★★★★★★★★★★★★★★★★
非公開物件も多数HPにて公開中♪♪HPから会員登録いただくと非公開物件が閲覧可能です♪♪下記店舗情報をクリックいただきURLからHPにお進みいただけます。
★★★★★★★★★★★★★★★★★★★★★★

芦屋川17th森田ビル 1~3階部分の特徴・設備


芦屋川17th森田ビル 1~3階部分 のことならお気軽にご相談ください。
テナントショップ神戸(株式会社LIFE)
TEL:078-391-9811
営業時間:9:30-18:00
定休日 :土・日・祝日
メールでのお問い合わせ

お電話の場合は「テナントショップを見ました。物件番号は < f10055-87509 > です」と伝えていただくとスムーズにお応えできます。

  • 借りる
  • 店舗を探す
  • 事務所・事業所を探す
  • 倉庫・工場を探す
  • 借地を探す
  • 美容・エステ・医療物件
  • 居抜き物件
非公開物件情報
一般公開物件
972
会員用非公開物件
176
  • ログイン
  • 新規登録
  • 買う
  • 売地を探す
フリーワード検索 [New!]
スペース区切りの複合語句検索はできません

  • 依頼する
  • 新着物件!未公開物件!地元に詳しい!
  • 物件リクエスト
  • スマートフォンで物件検索
  • 実績紹介
  • 物件管理
  • 会社概要・アクセス
  • 求人情報
  • 居抜きのまま閉店で開店費用を大幅に削減
  • LINE
  • 公式Facebook
  • 公式Instagram
  • 公式Twitter