ようこそ ゲスト 様

ビュ-コ-ト宮丘

お問い合わせ番号:f10055-87345r
賃貸店舗・事務所
神戸市長田区宮丘町1
神戸市営地下鉄 長田駅 ( 徒歩 17分 )
賃料 25.00万円(税別)
(坪単価:0.36万円)
大きい倉庫事務所お探しの方に
駐車場付き倉庫利用可
店舗、事務所に最適
現状渡し、スケルトン返し
自動ドア・蛍光灯・トイレは残置物
内覧候補日を数候補お問合せ時にお伝え下さい
管理費 -
-
保証金
解約引
-
-
敷金
礼金
25万円
50万円(税別)
建物/専有
面積
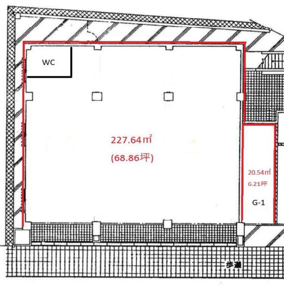
227.64m2
(68.86坪)
土地面積 - 築年月 1985年10月
(昭和60年10月)
駐車場 - 所在階 1階 地上階数
地下階数
5階
-
構造 鉄筋コンクリート造(RC)
現況 居住中
入居/引渡 空予定 
引渡年月 2025年10月
取引 仲介
物件登録日 2025年10月9日
情報更新日 2025年10月9日
★★★★★★★★★★★★★★★★★★★★★★
非公開物件も多数HPにて公開中♪♪HPから会員登録いただくと非公開物件が閲覧可能です♪♪下記店舗情報をクリックいただきURLからHPにお進みいただけます。
★★★★★★★★★★★★★★★★★★★★★★

ビュ-コ-ト宮丘の特徴・設備


ビュ-コ-ト宮丘 のことならお気軽にご相談ください。
テナントショップ神戸(株式会社LIFE)
TEL:078-391-9811
営業時間:9:30-18:00
定休日 :土・日・祝日
メールでのお問い合わせ

お電話の場合は「テナントショップを見ました。物件番号は < f10055-87345r > です」と伝えていただくとスムーズにお応えできます。

  • 借りる
  • 店舗を探す
  • 事務所・事業所を探す
  • 倉庫・工場を探す
  • 借地を探す
  • 美容・エステ・医療物件
  • 居抜き物件
非公開物件情報
一般公開物件
944
会員用非公開物件
146
  • ログイン
  • 新規登録
  • 買う
  • 売地を探す
フリーワード検索 [New!]
スペース区切りの複合語句検索はできません

  • 依頼する
  • 新着物件!未公開物件!地元に詳しい!
  • 物件リクエスト
  • スマートフォンで物件検索
  • 実績紹介
  • 物件管理
  • 会社概要・アクセス
  • 求人情報
  • 居抜きのまま閉店で開店費用を大幅に削減
  • LINE
  • 公式Facebook
  • 公式Instagram
  • 公式Twitter