ようこそ ゲスト 様

神戸市中央区 賃貸店舗・事務所

お問い合わせ番号:f10055-87266
賃貸店舗・事務所
神戸市中央区山本通1
地下鉄・西神山手線 三宮駅 ( 徒歩 6分 )
賃料 37.62万円(税別)
(坪単価:1万円)
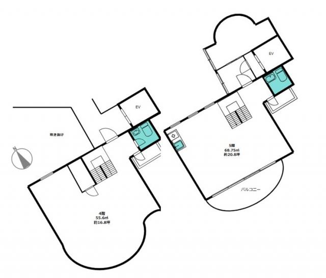
北野坂沿のお洒落なビル。物件内の階段を使ったメゾネットタイプ。室内はどこも明るくバルコニーからは北野坂通りを見渡せます。セコムセキュリティも付いています。
ガスは物件内に引き込み有。
業種はご相談ください。
管理費
共益費
-
75,232(税別)
保証金
解約引
-
-
敷金
礼金
3ヶ月
2ヶ月
建物/専有
面積
124.35m2
(37.61坪)
土地面積 - 築年月 1987年9月
(昭和62年9月)
駐車場 - 所在階 4-5階 地上階数
地下階数
5階
2階
現況 空き
入居/引渡 相談 
契約期間 2年
取引 仲介
物件登録日 2025年10月3日
情報更新日 2025年10月3日
※短期解約違約金 1年未満2カ月、2年未満1ヵ月
※エアコン、トイレ、流し台は貸主にてメンテナンス
神戸市中央区 賃貸店舗・事務所 のことならお気軽にご相談ください。
テナントショップ神戸(株式会社LIFE)
TEL:078-391-9811
営業時間:9:30-18:00
定休日 :土・日・祝日
メールでのお問い合わせ

お電話の場合は「テナントショップを見ました。物件番号は < f10055-87266 > です」と伝えていただくとスムーズにお応えできます。

  • 借りる
  • 店舗を探す
  • 事務所・事業所を探す
  • 倉庫・工場を探す
  • 借地を探す
  • 美容・エステ・医療物件
  • 居抜き物件
非公開物件情報
一般公開物件
949
会員用非公開物件
144
  • ログイン
  • 新規登録
  • 買う
  • 売地を探す
フリーワード検索 [New!]
スペース区切りの複合語句検索はできません

  • 依頼する
  • 新着物件!未公開物件!地元に詳しい!
  • 物件リクエスト
  • スマートフォンで物件検索
  • 実績紹介
  • 物件管理
  • 会社概要・アクセス
  • 求人情報
  • 居抜きのまま閉店で開店費用を大幅に削減
  • LINE
  • 公式Facebook
  • 公式Instagram
  • 公式Twitter