ようこそ ゲスト 様

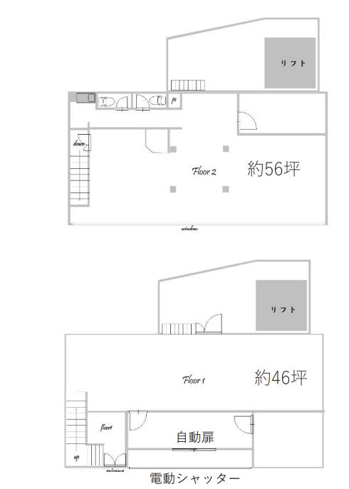
甲子園T’sビル 1+2階+倉庫

お問い合わせ番号:f10055-87245
賃貸店舗・事務所
西宮市戸崎町
東海道本線 甲子園口駅 ( 徒歩 11分 )
賃料 97.80万円(税別)
(坪単価:0.91万円)
西宮甲子園口 ロードサイド 一棟テナント
騒音及び臭い・煙の強い業種は不可
EVなし、シャッターあり、自動扉あり
24時間営業可、残置物性能保証なし
内覧候補日を数候補お問合せ時にお伝え下さい。
管理費 -
-
保証金
解約引
3ヶ月
-
敷金
礼金
-
3ヶ月
建物/専有
面積
353.34m2
(106.88坪)
土地面積 - 築年月 1961年10月
(昭和36年10月)
駐車場 - 所在階 1-2階 地上階数
地下階数
2階
-
構造 鉄筋コンクリート造(RC)
現況 居住中
入居/引渡 空予定 
引渡年月 2025年01月
取引 仲介
物件登録日 2025年10月1日
情報更新日 2025年10月1日
★★★★★★★★★★★★★★★★★★★★★★
非公開物件も多数HPにて公開中♪♪HPから会員登録いただくと非公開物件が閲覧可能です♪♪下記店舗情報をクリックいただきURLからHPにお進みいただけます。
★★★★★★★★★★★★★★★★★★★★★★

甲子園T’sビル 1+2階+倉庫の特徴・設備


甲子園T’sビル 1+2階+倉庫 のことならお気軽にご相談ください。
テナントショップ神戸(株式会社LIFE)
TEL:078-391-9811
営業時間:9:30-18:00
定休日 :土・日・祝日
メールでのお問い合わせ

お電話の場合は「テナントショップを見ました。物件番号は < f10055-87245 > です」と伝えていただくとスムーズにお応えできます。

  • 借りる
  • 店舗を探す
  • 事務所・事業所を探す
  • 倉庫・工場を探す
  • 借地を探す
  • 美容・エステ・医療物件
  • 居抜き物件
非公開物件情報
一般公開物件
949
会員用非公開物件
144
  • ログイン
  • 新規登録
  • 買う
  • 売地を探す
フリーワード検索 [New!]
スペース区切りの複合語句検索はできません

  • 依頼する
  • 新着物件!未公開物件!地元に詳しい!
  • 物件リクエスト
  • スマートフォンで物件検索
  • 実績紹介
  • 物件管理
  • 会社概要・アクセス
  • 求人情報
  • 居抜きのまま閉店で開店費用を大幅に削減
  • LINE
  • 公式Facebook
  • 公式Instagram
  • 公式Twitter