ようこそ ゲスト 様

別所町小林 店舗・作業所

お問い合わせ番号:f10055-86835r
賃貸店舗・事務所
三木市別所町小林
神鉄粟生線 志染駅 ( 徒歩 10分 )
賃料 70.00万円(税別)
(坪単価:0.59万円)
検済あり 自治会費 入会金10万
年会費2万から3万
設備 上下水、電気
・神鉄粟生線 志染駅 徒歩10分
・設備・備品・機材等は残置物扱いです
・ロードサイドテナント
・諸条件相談可能
・火災保険・賃貸保証会社加入要
・お問い合わせが多い物件です。内覧候補日を数候補
 お問い合わせ時にお伝え下さい。
管理費 -
-
保証金
解約引
-
-
敷金
礼金
12ヶ月
2ヶ月(税別)
建物/専有
面積
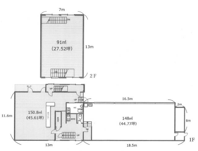
389.69m2
(117.88坪)
土地面積 - 築年月 2003年9月
(平成15年9月)
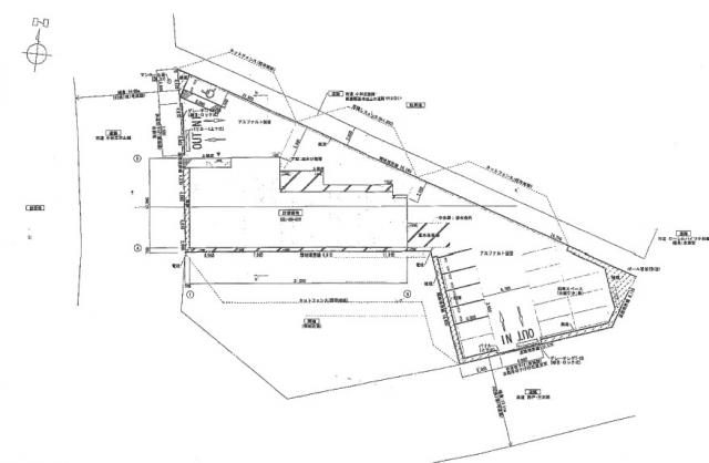
駐車場 有り無料 所在階 1-2階 地上階数
地下階数
2階
-
構造 鉄骨造
用途地域 第一種住居地域
現況 空き
入居/引渡 相談 
取引 仲介
物件登録日 2025年9月9日
情報更新日 2025年9月30日
★貸出物件大募集中!
★貸店舗・貸事務所・貸倉庫・貸工場など
 テナントショップ神戸で広告いたします。
 物件オーナー様、お気軽にご連絡下さい。
★広告NGのオーナー様も大丈夫です
 テナントショップ神戸に登録済みの顧客と
 マッチング致します。
★専任・一般問わずお気軽にどうぞ!

別所町小林 店舗・作業所の特徴・設備


別所町小林 店舗・作業所 のことならお気軽にご相談ください。
テナントショップ神戸(株式会社LIFE)
TEL:078-391-9811
営業時間:9:30-18:00
定休日 :土・日・祝日
メールでのお問い合わせ

お電話の場合は「テナントショップを見ました。物件番号は < f10055-86835r > です」と伝えていただくとスムーズにお応えできます。

  • 借りる
  • 店舗を探す
  • 事務所・事業所を探す
  • 倉庫・工場を探す
  • 借地を探す
  • 美容・エステ・医療物件
  • 居抜き物件
非公開物件情報
一般公開物件
948
会員用非公開物件
148
  • ログイン
  • 新規登録
  • 買う
  • 売地を探す
フリーワード検索 [New!]
スペース区切りの複合語句検索はできません

  • 依頼する
  • 新着物件!未公開物件!地元に詳しい!
  • 物件リクエスト
  • スマートフォンで物件検索
  • 実績紹介
  • 物件管理
  • 会社概要・アクセス
  • 求人情報
  • 居抜きのまま閉店で開店費用を大幅に削減
  • LINE
  • 公式Facebook
  • 公式Instagram
  • 公式Twitter