ようこそ ゲスト 様

神戸市中央区 賃貸事務所

お問い合わせ番号:f10055-86712
賃貸事務所
神戸市中央区東町
各線三ノ宮駅 ( 徒歩 7分 )
賃料 64.25万円(税別)
(坪単価:1万円)
お問い合わせが多い物件です。内覧候補日を数候補
お問合せ時にお伝え下さい。
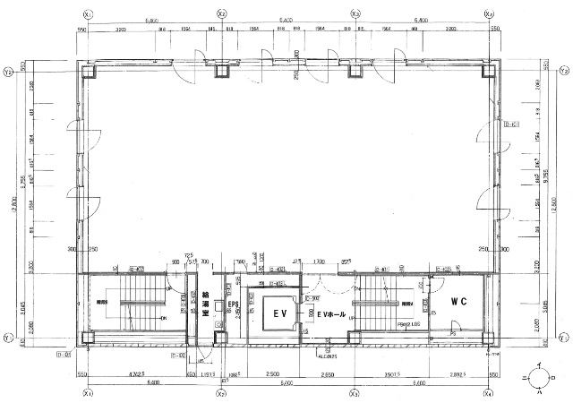
フロア内に給湯室有り。
排水増量不可。その為クリニック関係は不可
事務所におすすめ 事務所居抜き1フロアタイプ
セキュリティ万全。24時間保安体制です
共用部にトイレあり
天井高さ 2.5メートル
諸条件相談可能
火災保険・賃貸保証会社加入要
新耐震基準
管理費
共益費
-
224,875円(税別)
保証金
解約引
-
-
敷金
礼金
8ヶ月
-
建物/専有
面積
212.39m2
(64.24坪)
土地面積 - 築年月 1994年3月
(平成6年3月)
駐車場 - 所在階 3階 地上階数
地下階数
8階
-
構造 鉄骨造
現況 空き
入居/引渡 相談 
取引 仲介
物件登録日 2025年9月4日
情報更新日 2025年9月9日
★毎日ザクザク情報公新中!
★ネットNG情報・水面下情報など、担当者に
 お問い合わせ下さい。
★あなたにピッタリの物件情報が見つかります。
★出店時の融資の相談、退店時の備品の相談
 水面下での業務引き継ぎなどなど、
 専門スタッフがご回答させて頂きますので
 お気軽にご相談ください。

神戸市中央区 賃貸事務所の特徴・設備


神戸市中央区 賃貸事務所 のことならお気軽にご相談ください。
テナントショップ神戸(株式会社LIFE)
TEL:078-391-9811
営業時間:9:30-18:00
定休日 :土・日・祝日
メールでのお問い合わせ

お電話の場合は「テナントショップを見ました。物件番号は < f10055-86712 > です」と伝えていただくとスムーズにお応えできます。

  • 借りる
  • 店舗を探す
  • 事務所・事業所を探す
  • 倉庫・工場を探す
  • 借地を探す
  • 美容・エステ・医療物件
  • 居抜き物件
非公開物件情報
一般公開物件
945
会員用非公開物件
147
  • ログイン
  • 新規登録
  • 買う
  • 売地を探す
フリーワード検索 [New!]
スペース区切りの複合語句検索はできません

  • 依頼する
  • 新着物件!未公開物件!地元に詳しい!
  • 物件リクエスト
  • スマートフォンで物件検索
  • 実績紹介
  • 物件管理
  • 会社概要・アクセス
  • 求人情報
  • 居抜きのまま閉店で開店費用を大幅に削減
  • LINE
  • 公式Facebook
  • 公式Instagram
  • 公式Twitter