| 検索条件 | 
| 地域 | 兵庫県 | 
|---|---|
| こだわり条件 | 新着物件 | 

| タイプ▼ | 価格▼ | 面積▼ | |||
|---|---|---|---|---|---|
|   | 貸事務所 f10055-87567r | 15.00万(税別) (1.04万/坪) 礼:3ヶ月 駐:無 | 47.61㎡ (14.4坪) 階:3F/3F |  神戸市東灘区住吉本町2  JR東海道本線 住吉    1   1981年1月(昭和56年1月) 住吉1分・事務所に
ワンフロア
トイレ、洗面、シャワールーム
士業事務所優遇
内覧候補日を数候補お問合せ時にお伝え下さい |  | 
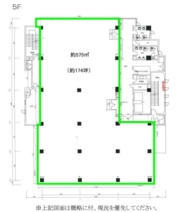
|   | 貸事務所 f10055-87566r | 150.00万(税別) (0.86万/坪) 礼:2ヶ月 敷:4ヶ月 駐:有り有料 | 575.00㎡ (173.93坪) 階:5F/6F |  神戸市中央区港島中町6  ポートアイランド線 南公園    3   1987年5月(昭和62年5月) ポーアイ・大型事務所空きが出ました
ワンフロア
EV、男女別トイレ、給湯室
内覧候補日を数候補お問合せ時にお伝え下さい。 |  | 
|   | 住店舗戸建 f10055-87565r | 41.00万(税別) (0.68万/坪) 礼:2ヶ月 敷:2ヶ月 | 199.56㎡ (60.36坪) 階:1-3F/3F |  神戸市東灘区森南町1  JR東海道本線 甲南山手    1   1989年12月(平成元年12月) 甲南山手駅まで徒歩1分、店舗付き住宅の募集です。1階店舗は軽飲食相談可能ですよ。
スケルトン渡し
1年未満の解約は違約金あり
10年定期賃貸借
鍵交換代2.2万円
退去時清掃代8万円税別住居部分
内覧候補日を数候補お問合せ時にお伝え下さい。 |  | 
|   | 貸店舗一部 f10055-87564r | 9.90万(税別) (0.98万/坪) 管:56,313円(税込) 礼:19.8万円(税別) 敷:19.8万円 駐:無 | 33.55㎡ (10.14坪) 階:1F/10F |  神戸市兵庫区荒田町2  地下鉄 湊川公園    3   1975年10月(昭和50年10月) 湊川1F店舗
物販、携帯ショップ、カルチャースクール、塾など教室に
2年以内の短期解約違約金
内覧候補日を数候補お問合せ時にお伝え下さい |  | 
|   | 貸店舗・事務所 f10055-87563r | 25.00万(税別) (0.21万/坪) 礼:1ヶ月 敷:1ヶ月 駐:無 | 390.78㎡ (118.21坪) 階:3-4F/4F |  神戸市兵庫区北逆瀬川町  山陽本線 兵庫    13   1991年1月(平成3年1月) ・メゾネット物件
・設備給湯器のみ
改装無現状引渡し 301号室、302号
室、401号室、402号室
内覧候補日を数候補お問合せ時にお伝え下さい |  | 
|   | 貸店舗一部 f10055-87562r | 13.00万(税別) (0.83万/坪) 礼:30万円 敷:20万円 駐:無 | 52.00㎡ (15.73坪) 階:1-2F/3F |  神戸市須磨区飛松町1  地下鉄 板宿    4   1983年8月(昭和58年8月) 内装美麗
什器備品は残置物
内覧候補日を数候補お問合せ時にお伝え下さい |  | 
|   | 貸店舗・事務所 f10055-87561 | 8.91万(税込) (0.88万/坪) 管:21,171円(税込) 礼:17.82万円(税込) 敷:8.10万円 駐:無 | 33.48㎡ (10.12坪) 階:5・6F/7F |  神戸市中央区北長狭通5  JR 元町    3   1983年1月(昭和58年1月) 501も募集
・JR元町駅徒歩3分 事務所
・24時間入退出可 シャッター完備
・諸条件相談可
内覧候補日を数候補お問い合わせ時にお伝え下さい |  | 
|   | 貸店舗・事務所 f10055-87560 | 8.91万(税込) (0.88万/坪) 管:21,171円(税込) 礼:17.82万円(税込) 敷:8.10万円 駐:無 | 33.48㎡ (10.12坪) 階:5・6F/7F |  神戸市中央区北長狭通5  JR 元町    3   1983年1月(昭和58年1月) 601も募集
・JR元町駅徒歩3分 事務所
・24時間入退出可 シャッター完備
・諸条件相談可
内覧候補日を数候補お問い合わせ時にお伝え下さい |  | 
|   | 貸店舗・事務所 f10055-87559r | 15.18万(税込) (1.64万/坪) 共:3,300円(税込) 礼:30.36万円 敷:13.8万円 駐:近隣 | 30.57㎡ (9.24坪) 階:1F/3F |  西宮市門戸荘  阪急今津線 門戸厄神    1   2025年6月(令和7年6月) ・門戸厄神駅徒歩1分 新築1階店舗
・飲食店不可
内覧候補日を数候補お問い合わせ時にお伝え下さい |  | 
|   | 貸店舗戸建 f10055-87558r | 9.00万(税別) (0.87万/坪) 管:65,210円 礼:1ヶ月 敷:6ヶ月 | 34.05㎡ (10.3坪) 階:2F/17F |  西宮市羽衣町  阪急神戸線 夙川    2   1977年10月(昭和52年10月) ・夙川グリーンタウン北棟・2F
・建物より阪急夙川栄駅に歩道橋にて直通
内覧候補日を数候補お問い合わせ時にお伝え下さい。 |  | 
|   | 貸事務所 f10055-87557r | 16.50万 (0.50万/坪) 共:8,800円 保:35万円 | 110.00㎡ (33.27坪) 階:3F/4F |  西宮市戸田町  阪神本線 西宮    3   1971年12月(昭和46年12月) 飲食不可
ワンフロア
トイレ専用
内覧候補日を数候補お問合せ時にお伝え下さい |  | 
|   | 貸店舗・事務所 f10055-87556 | 23.00万(税別) (1.27万/坪) 管:2万円(税別) 礼:72万円(税別) 敷:54万円 駐:無 | 59.90㎡ (18.11坪) 階:B1F/6F |  神戸市東灘区岡本1  JR東海道本線 摂津本山    2   1986年7月(昭和61年7月) 山手幹線沿いの好立地テナントです。スケルトン渡し。業種はご相談下さい
鍵交換代なし、スケルトン返し
内覧候補日を数候補お問合せ時にお伝え下さい |  | 
|  | 住店舗戸建  | ***万 礼:*** 敷:*** 駐:有 |  ***㎡ (***坪) ***㎡ (***坪) 階:1-3F/3F |  西宮市戸田町  阪神本線 西宮    5  この物件は会員登録後にご覧いただけます。会員登録はコチラから! | |
|   | 貸店舗一部 f10055-87554 | 50.00万(税別) (2.50万/坪) 管:5万(税別) 敷:300万円 解:150万円 駐:空無 | 66.20㎡ (20.02坪) 階:1F/5F |  西宮市甲風園1  阪急神戸線 西宮北口    3   1987年12月(昭和62年12月) ・西北徒歩2分 1F路面 飲食不可
内覧候補日を数候補お問い合わせ時にお伝え下さい |  | 
|   | 貸店舗一部 f10055-87553 | 39.08万 (2.75万/坪) 敷:6ヶ月 駐:無 | 46.97㎡ (14.2坪) 階:1F/5F |  神戸市中央区八幡通4  阪神本線 神戸三宮    7   1998年3月(平成10年3月) ・鍵交換なし
・フリーレント相談可
内覧候補日を数候補お問い合わせ時にお伝え下さい |  | 
|   | 貸店舗・事務所 f10055-87552r | 15.00万(税込) (1.41万/坪) 礼:30万円 保:20万円 駐:近隣 | 35.10㎡ (10.61坪) 階:1F/2F |  西宮市大井手町  阪急神戸線 夙川    3   1986年11月(昭和61年11月) ・阪急夙川駅徒歩3分 1階店舗
・飲食店不可
・近隣コインパーキングあり
内覧候補日を数候補お問い合わせ時にお伝え下さい |  | 
|   | 貸店舗・事務所 f10055-87551 | 18.00万(税別) (1.55万/坪) 礼:2ヶ月 敷:3ヶ月 | 38.40㎡ (11.61坪) |  神戸市中央区下山手通3  阪急神戸線 神戸三宮    5   1982年4月(昭和57年4月) 鯉川筋店舗事務所・内装綺麗です
現状貸
生田新道・トアロード沿い
内覧候補日を数候補お問合せ時にお伝え下さい |  | 
|   | 貸店舗・事務所 f10055-87550 | 20.00万(税別) (0.98万/坪) 礼:3ヶ月 敷:2ヶ月 駐:無 | 67.20㎡ (20.32坪) 階:2F/5F |  神戸市中央区下山手通2  地下鉄 三宮    5   1977年4月(昭和52年4月) 三宮・約20坪事務所
飲食不可
EV、エアコン、照明
クロス・床カーペット全面貼替済み
内覧候補日を数候補お問合せ時にお伝え下さい |  | 
|   | 貸店舗・事務所 f10055-87549 | 20.00万(税別) (0.94万/坪) 共:2万円(税別) 駐:有り有料 | 70.20㎡ (21.23坪) 階:3F/5F |  西宮市南越木岩町  阪急甲陽線 苦楽園口    3   1975年2月(昭和50年2月) 苦楽園・スケルトン
原則同業種入居不可 要相談
飲食の場合、排水は別途配管要
内覧候補日を数候補お問合せ時にお伝え下さい |  | 
|   | 貸店舗一部 f10055-87548 | 30.00万(税別) (0.95万/坪) 礼:60万円(税別) 敷:60万円 解:30万円 | 104.00㎡ (31.46坪) 階:1F/4F |  神戸市長田区若松町2  山陽本線 新長田    3   1989年3月(平成元年3月) 新長田・1F 分割パターン
飲食・物販・医院・介護に
元店舗は居酒屋
スケルトン
内覧候補日を数候補お問合せ時にお伝え下さい |  | 
|   | 貸倉庫 f10055-87547 | 15.00万(税別) (0.29万/坪) 礼:2ヶ月 敷:2ヶ月 | 170.00㎡ (51.42坪) 階:1F |  姫路市実法寺  姫新線 余部    18   1974年12月(昭和49年12月) 姫路工業地域・倉庫
倉庫内、事務所スペースあり
敷地も広く、多数駐車可能
内覧候補日を数候補お問合せ時にお伝え下さい |  | 
|   | 貸店舗・事務所 f10055-87546 | 9.00万(税込) (0.42万/坪) 礼:3ヶ月 | 70.30㎡ (21.26坪) 階:2F/3F |  加古川市野口町野口  山陽本線 東加古川    14   不詳 ドン・キホーテ加古川店イオン加古川店徒歩1分
前テナント貸衣装
2階共用部にトイレ有ります
フリーレント期間1ヵ月ご相談にのります。 |  | 
|   | 貸店舗・事務所 f10055-87545 | 13.50万(税別) (0.95万/坪) 礼:2ヶ月(税別) | 46.89㎡ (14.18坪) 階:1F |  神戸市長田区久保町5  新長田    7   2004年2月(平成16年2月) 飲食NG
同建物内B1に大型スーパー有り。
両面からの出入りが可能でどちらも電動シャッター有ります。
電気、水道あり ガス設備はありません。 
1年未満の解約については賃料2ヵ月1年以上2年未満の場合1ヵ月の短期解約違約金が掛かります。
別途、大正筋商店街組合費用有り
費用については組合に直接お問い合わせください。 |  | 
|   | 貸店舗一部 | 50.00万(税別) (2.02万/坪) 礼:3ヶ月 敷:3ヶ月 駐:無 | 82.00㎡ (24.8坪) 階:1F/32F |  神戸市垂水区神田町  山陽本線 垂水    3   2026年4月(令和8年4月) 垂水・1F
定期借家10年
内覧候補日を数候補お問合せ時にお伝え下さい |  | 
|   | 貸店舗一部 | 30.00万(税込) (2.48万/坪) 礼:3ヶ月 敷:3ヶ月 駐:無 | 40.00㎡ (12.1坪) 階:1F/32F |  神戸市垂水区神田町  山陽本線 垂水    3   2026年4月(令和8年4月) 垂水・1F
定期借家10年
内覧候補日を数候補お問合せ時にお伝え下さい |  | 
|   | 貸事務所 f10055-87542r | 13.75万(税込) (0.87万/坪) 管:5,000円(税別) 礼:44万円(税込) 保:20万円 駐:無 | 52.00㎡ (15.73坪) 階:2F/2F |  神戸市灘区大石東町6  JR 六甲道    13   1997年3月(平成9年3月) ・室内キレイですぐに使えます
・設備新品交換多数
・国道2号線、43号線、徒歩約2分の好立地
・鍵交換代金あり
・短期解約違約金あり
内覧候補日を数候補お問い合わせ時にお伝え下さい。
 |  | 
|   | 貸店舗戸建 f10055-87541 | 49.50万(税込) (1.27万/坪) 礼:2ヶ月 駐:有 (15台) |  513.01㎡ (155.18坪) 129.00㎡ (39.02坪) 階:1F |  西宮市山口町上山口4  岡場    38   2024年2月(令和6年2月) 車関係の業種におすすめ。
広々155坪の敷地に88.94㎡の車庫、40㎡のトレーラーハウス。車庫内に二柱リフト、エア配管。トレーラーハウスのSECOMセキュリティ付き。
 |  | 
|  | 貸店舗・事務所  | ***万 礼:*** 敷:*** 駐:無 | ***㎡ (***坪) 階:2F/5F |  尼崎市武庫之荘1  阪急神戸線 武庫之荘    3  この物件は会員登録後にご覧いただけます。会員登録はコチラから! | |
|   | 貸店舗一部 f10055-87538r | 35.70万(税別) (1.50万/坪) 共:1万円(税別) 礼:107.1万円(税別) 敷:107.1万円 駐:有り有料 | 78.58㎡ (23.77坪) 階:1F/10F |  明石市本町1  山陽本線 明石    6   2024年11月(令和6年11月) 明石駅徒歩圏内新築テナント
重飲食不可
スケルトン渡し、スケルトン返し
内覧候補日を数候補お問合せ時にお伝え下さい |  | 
|   | 貸店舗一部 f10055-87537 | 29.00万(税別) (1.61万/坪) 礼:1ヶ月 敷:1ヶ月 | 59.40㎡ (17.96坪) 階:2F |  神戸市中央区中山手通1  JR東海道本線 三ノ宮    4   1985年12月(昭和60年12月) 三宮・飲食相談
ダーツバー居抜
看板電気代月3300円、ゴミ代月2200円
看板作成費実費
内覧候補日を数候補お問合せ時にお伝え下さい |  |